+7 (499) 394-27-08

Проект одноэтажного дома

100 м2

Московская область

2025

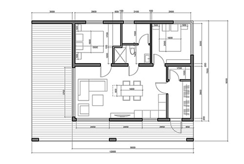
Проект одноэтажного жилого дома со скатной крышей

Дом с панорамными окнами, внутренние пространства в интерьере, раскрыты на внутренний двор. Материал стен - кирпич, монолитный железобетон. Основание – монолитная плита. Облицовка фасадов – клинкерная плитка.

характеристики жилого дома:

  • Общая площадь 100м2
  • Московская область
  • Проект выполнен в 2025 г.

Пн-Пт 09:00 - 21:00

прием звонков ежедневно

ДРУЗЬЯ! ПРЕДЛОЖЕНИЯ О СОТРУДНИЧЕСТВЕ ПРИНИМАЕМ ТОЛЬКО НА ПОЧТУ, СПАСИБО ЗА ПОНИМАНИЕ!

№1 Москва, Волоколамское ш., д. 88, стр. 1

№2 Москва, Новоясеневский пр., дом 9

Проводим встречи на объектах, выезжаем в регионы РФ